แบบบ้านชั้นเดียวสไตล์โมเดิร์น โทนสีม่วงขาว 3 ห้องนอน 2 ห้องน้ำ

Posted by

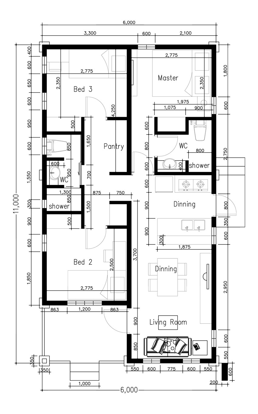
แบบบ้านชั้นเดียวสไตล์โมเดิร์น โทนสีม่วงขาว 3 ห้องนอน 2 ห้องน้ำ พื้นที่ใช้สอย 66 ตารางเมตร
บ้านสไตล์โมเดิร์นเป็นบ้านที่ได้รับความนิยมสูง ด้วยรูปทรงที่เรียบง่ายแต่สวยงาม ทั้งยังสามารถดีไซน์ขนาดได้ตามต้องการ จึงเป็นบ้านที่ครองใจหลายคน วันนี้ ในบ้าน ก็มี แบบบ้านสไตล์โมเดิร์นขนาดพอเหมาะ มาฝากเพื่อนๆ เป็นบ้านที่มีขนาดเล็ก แต่ครบทุกฟังก์ชั่นการใช้งาน

บ้านสไตล์โมเดิร์นหลังนี้เป็นบ้านขนาดชั้นเดียว ออกแบบตัวบ้านในรูปทรงสี่เหลี่ยม ทางเข้าบริเวณหน้าบ้านมีพื้นที่ระเบียงขนาดเล็ก หลังคาของบ้านเป็นแบบเรียบที่ผสานไปกับรูปทรงของบ้าน ผนังภายนอกตกแต่งด้วยโทนสีม่วง สลับกับขาว ช่วยให้บ้านดูโดดเด่นสวยงาม

การออกแบบบานหน้าต่าง ออกแบบในลักษณะทรงสูงที่ให้ความเป็นโมเดิร์นได้ดี นอกจากนี้ด้านข้างของตัวบ้านยังออกแบบเป็นทางเข้าออกอีกแห่ง ซึ่งเชื่อกับห้องครัวภายในบ้าน

พื้นที่หลักภายในบ้านเป็นโถงขนาดใหญ่ที่รวมพื้นที่การใช้งานทั้งห้องครัว ห้องนั่งเล่น และห้องรับประทานอาหารเข้าไว้ด้วยกันได้อย่างพอดี ในขนาดที่พอเหมาะ เพียงพอต่อการใช้งาน

แบบบ้านสไตล์โมเดิร์นหลังนี้ประกอบไปด้วย 3 ห้องนอน 2 ห้องน้ำ 1 ห้องนั่งเล่น 1 ห้องครัว สามารถต่อเติมที่จอดรถได้ พื้นที่ใช้สอยขนาด 66 ตร.ม.


เป็นอย่างไรกับบ้างครับสำหรับไอเดียแบบบ้านสไตล์โมเดิร์นขนาดพอเหมาะหลังนี้ เพื่อนๆ ที่สนใจอาจจะลองนำไอเดียนี้ไปให้ผู้เชี่ยวชาญช่วยด้านการออกแบบดูกันได้นะครับ
ที่มา : coolhouseconcepts

Leave a Reply

อีเมลของคุณจะไม่แสดงให้คนอื่นเห็น ช่องข้อมูลจำเป็นถูกทำเครื่องหมาย *